Byt Pečky
Vizualizace
https://smtp.bydlo.cz/files/image/projects/4893/vizality-cz_4893_42654_big.jpeg
Bydlo.cz
213
41
https://smtp.bydlo.cz/www/images/header-logo-02.png
Zobrazení realizace
943
Líbí se
0
Základní informace o realizaci
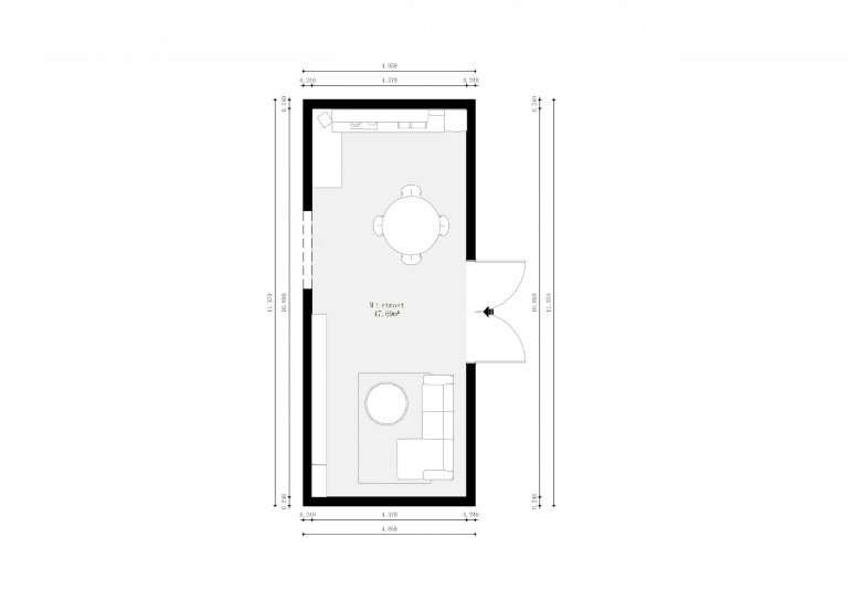
Vizualizace potencionálního budoucího stavu kuchyně, jídelny a obývacího pokoje. Přáním bylo zařazení tmavších barev, zlatých detailů, geometrických prvků.
Číst více
Regiony působnosti
Celá ČR
Slovensko
Ostatní země